CHO THUÊ MẶT BẰNG 2 MẶT TIỀN TRƯỚC SAU SỐ 387 ĐƯỜNG NGUYỄN VĂN LUÔNG, PHƯỜNG 12, QUẬN 6, HỒ CHÍ MINH

Giá: 120 triệu

Diện tích: 840m2

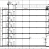
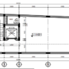
– Diện tích: 4.6x32m Nở hậu 6m
– Kết cấu: 1 trệt 1 lửng 4 lầu thang máy ST
– Giá cho thuê: 120 triệu/tháng chưa VAT
– Thời hạn cho thuê: dài hạn
– Đặt cọc và Thanh toán: TL
– Thời gian nhận nhà: nhận ngay
Mô tả chi tiết về nhà cho thuê: mặt bằng mới , 2 mặt tiền có sân sau và đường hẻm xe tải sau lưng nhà, thuận tiện để xe và lên xuống hàng. Ưu tiên cho thuê làm văn phòng, công ty (Hạn chế ngành nghề CHDV)

Gọi điện thoại
090.234.6263
Chat Zalo